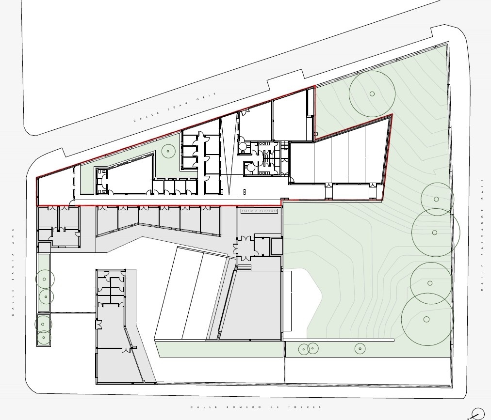
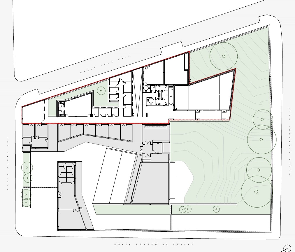
Licitación de la obras de ampliación del Centro Cívico Antonio Machado para el proyecto Ciudad de la Música
- ???label.link.back???
- ???label.link.share???
28/11/2025
Publicada en la Plataforma de Contratación del Sector Público la licitación de las obras de ampliación del Centro Cívico Antonio Machado – Ciudad de la Música. El contrato tiene un valor estimado de 1.370.174,40 euros.
El plazo para la presentación de ofertas finaliza el día 17 de diciembre de 2025 a las 23:59 horas.


